麹町444 Kojimachi 444
都心の狭小地を最大限に活かす
レシプロカルのNEW STANDARD
Reciprocal’s new standard:
making the most of small spaces in the city
Overview
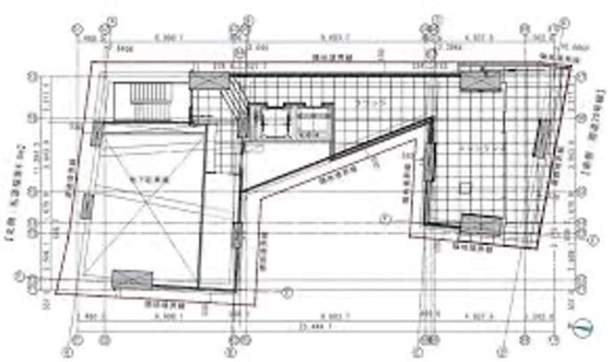
狭い間口、かつすべての角に杭が残置しているという、都心にありがちな窮地。そこでは、杭の新設が不可能なため、それを避けた設計が求められていた。
設計者があっけに取られるほどいびつな土地の形状の中でも、構造と建築デザインを高次元で融合させるAIGの代表的なケーススタディ
表現の可能性が広がる
チェーン引き仕上げの採用
MAT それでは麹町444の話をしたいと思います。結構印象的な外観が出来たと思うんですけどいかがですか?
SAT 凄い印象的なのが出来ましたよね
MAT 今回、外壁にチェーン引きっていう仕上げを採用しているんですけど、それも結構マッチしていて、ちょっと異様な雰囲気の建物ができていて僕はとても気に入っています
AND 素材感がいいですよね。このチェーン引き、ずっとやってみたかったんで、今回大々的に採用してすごい良かったなと思ってます
SAT それがそのまま構造を表現しているっていうのも本当に良いですよね、かっこいいし
設計難易度の高い狭小地を
逆手に取るレシプロカル構造
MAT 最初に敷地見た時ってどうでした?
SAT いや、もう意匠的に言うと、本当にびっくりしました。本当にプランが成り立つのかっていうくらい不思議な形状をしてたので
AND (模型を見ながら)上から見るとアルファベットのCのような形でしたからね。なので、ボリュームを2つに分けるっていうのは最初からコンセプトとして決まってましたよね
MAT あと、さらに難しいのが、敷地形状に対して、すべての角に、既存の杭が入っているっていうのも問題としてありましたよね
AND 都心で建物を建てると必ず四隅には杭がありますからね。それを避けるっていう意味で、このプロジェクトを前から色々思考してて、良いなと思っていたレシプロカルっていう相持ち構造を今回は大々的に二つのボリュームで採用してるんですけど、手前と後ろはこんな感じのボリュームになっていて、構造的には二つのボリュームで、建物が成立しているみたいな。お互いが手をつないで、一人だと不安定だけど、2人が手をつなぐとバランスがいいみたいなことを最初から考えていましたね
外観を強調するための
サッシのディテール
AND あとは今回のこの建物、現場打ちのプレストレストコンクリートですけど、梁にテーパリングって言って、ハンチを設けて軽量化を図るっていうことは、今までもやってきて結構効果があるなっていうのもあったので、今回はレシプロカルの力の流れをそのまま表現できるように、テーパーを施して、端部には緊張端カバーが出てくるというPCのならではの表情を作るってことを結構意識してやってましたね
SAT そのフレームを生かすためにも、サッシをわざとちゃんとインセットしてつけることで、フレームがより強調できるような形でやってましたね
AND それ、かなりこだわってましたよね(笑)。最初からね。今までやってきましたから
SAT そうですね。むしろ安藤さんから、ここは皆でしっかりやっていこうよっていうこだわりが今回凄い表現できているところかなとは思いますね
MAT 内観的にも結構効いてますよね、このテーパーと角が抜けてるっていうのは
AND 気持ちいいですよね
SAT コーナー抜くっていうのはやっぱり憧れですよね。かっこいいっていうか
次は鉄骨造のレシプロカル設計へ
AND 建築好きは皆コーナー抜くっていうのはね、ありますよね(笑) ただ、今回それをそのまま外観に表して、サッシがそうなっているんで、ブラインドをどうするんだ問題っていうのもありましたよね。普通にブラインドって考えると、ホリゾンタルだから、水平だと下が開いちゃうみたいになっちゃうんで。今回バーティカルブラインドを採用してますけど、閉まってる時はビシっと閉まるんですけど、全部開けるとね、なんかこう、こっちが長くて、こっちが短いから、こう寄せちゃうと下が開いているみたいな
SAT まあそれはブラインドが溜まった時もデザインするっていうのは次回の課題として、
AND フレームの内側に、ブラインドボックスがちゃんと天井面に収まるほど敷地が広ければ、それも採用できたかもしれないですけど、今回はまあ仕方ないというか、生々しくていいですよね。
MAT でもこの形式って、今回だけじゃなくて、いろんなプロジェクトに今後転用できそうな気がするんですけど
AND 転用するっていう意味で言うと、次は鉄骨造とかでレシプロカルをやってみるのも面白いかもしれないですよね
SAT 鉄骨造(のレシプロカル)、楽しみですね。どういうことができるかも含めて
AND RC造なので、木造ではできるって考えると、やっぱり鉄骨造もレシプロカルは結構面白いかもしれないですよね。
またそうやって自分たちで大きなテーマを掲げて、難しくしていくっていうのがAIGの面白いところではありますよね。




data
- 所在地
- 東京都千代田区
- 用途
- 事務所
- プロジェクト期間(開始)
- 2020.04
- プロジェクト期間(竣工)
- 2022.09
- 規模
- 地上12階 地下1階
Credit
- クライアント
- 株式会社LeTech
- 施工会社
- ピーエス・コンストラクション株式会社
- 写真家
- 平井 広行